Устройство и принцип работы
Котел КВм-3.65 – это водогрейных механический котел, состоящий из блока топки, системы трубопроводы и теплоизоляционного каркаса. Топливо загружается в бункер, откуда механическим путем попадает в топку. Начинается процесс горения, в результате которого нагревается энергоноситель в трубопроводной системе. Нагретая вода может использоваться потребителями для обеспечения нужд отопления и горячего водоснабжения.
Газы, образовавшиеся в процессе горения, дважды проходят через конвективную часть, полностью отдают тепло и выводятся. Зола, образовавшийся в результате горения, выводится из системы механическим способом.
Условное обозначение
Водогрейный котел КВм-3.65 на древесных отходах, где:
- К – котел;
- В – водогрейный;
- м – механическая топка;
- 3.65 – мощность котла.
Особенности и преимущества
- Высокий показатель КПД;
- Развитая конвективная поверхность, способствующая увеличению срока службы оборудования;
- Отсутствие водоподготовки;
- Автоматизация топливоподачи и золовыведения;
- Системы сжигания топлива, адаптированные специально под ДВО;
- Компактный размер.
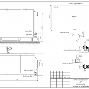
Размещение и установка
Котел КВм-3.65 устанавливается на фундамент и крепится анкерными болтами. Далее к нему монтируется топка и системы автоматизации, если таковые имеются. Важно установить котел ровно, используя уровень, и обеспечить доступ воздуха к системам воздухоподачи.
Собранный котел подключается к системам водоснабжения, на него устанавливается запорная арматура и КИП. Финальной стадией сборки является монтаж газовыводящей системы и установка элементов управления. После проверки сборки котла и его тестового запуска, котел готов к эксплуатации.
Эксплуатация и техническое обслуживание
После сборки и монтажа котел подключается к водопроводной системе и начинает работу. Котел КВм-3.65 работает автономно и не требует вмешательства человека в процессе своей работы. Помимо простоты использования котел КВм имеет еще и длительный срок службы с сохранением высокого показателя КПД на протяжении всего срока.
Важно отметить, что производить ремонтные работы и техническое обслуживание могут только квалифицированные специалисты, имеющие специальное разрешение. При организации технического обслуживания следует учитывать требования «Правил устройства и безопасной эксплуатации паровых и водогрейных котлов».
Комплектация
Котел КВм-3.65 доставляется отдельными блоками, которые требуют сборки. При заказе котел комплектуется всем необходимым, чтобы правильно установить прибор: запорной арматурой, контрольно-измерительными приборами, частями вентиляционной системы, а также – дымососом и золоуловителем, если есть необходимость очистки дымовых газов.















