Устройство и принцип работы
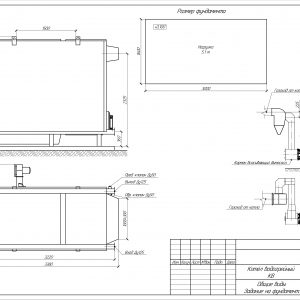
Устройство водогрейного котла КВр-2 состоит из следующих составляющих: металлического корпуса, покрытого теплоизоляционным материалом, системы ручной подачи топлива в топку котла, собственно топки, предохранительной и запорной арматуры и контрольно-измерительных приборов.
Топка (ОУР) – это охлаждаемая угловая решетка. Механизм топки состоит из труб, охлаждаемых водой, с уголком между ними. Перфорация по длине угла способствует распределению воздуха по всей площади. Воздух подается с помощью вентиляторов. В совокупности получается технология, позволяющая сжигать топливо в полукипящем слое, что снижает его химический и механический недожог.
Полукипящий слой получается за счет движения мелких частиц топлива при воздействии на них движущегося потока воздуха от вентилятора и движения газов от горения. Во время такого движения в полукипящем слое мелкие частицы воздействую на крупные, разогревая их и удаляя шлаковую корку. Таким образом, в полукипящем слое происходит полноценное сжигание топлива с уменьшенным выбросом золы.
Условное обозначение
Водогрейный котел КВр-2 на древесных отходах с топкой ОУР, где:
- К – котел;
- В – водогрейный;
- р – ручная топка;
- 2 – мощность котла, МВт;
- О – охлаждаемая;
- У – угловая;
- Р – решетка.
Особенности и преимущества
- Незначительные затраты за счет использования отходов древесной промышленности в качестве топлива;
- Экономичность расхода топлива за счет его полноценного сгорания;
- Адаптивная система сжигания топлива;
- Значительное повышение КПД котельного оборудования (от 80% и более);
- Надежность и долгосрочность эксплуатации котла за счет примитивного механизма;
- Нет необходимости в специальной водоподготовке.
Размещение и установка
После завершений монтажных работ котел КВр-2 подключается к водопроводной системе и начинает работать. Котел работает самостоятельно и ручной труд необходим только для заброса топлива, очищения от золы и контроля за показателями. Установку стоит доверить специалистам, чтобы все оборудование было установлено согласно нормам и правилам.
Эксплуатация и техническое обслуживание
Производить ремонтные работы и техническое обслуживание могут только квалифицированные специалисты, имеющие специальное разрешение. При организации технического обслуживания следует учитывать требования «Правил устройства и безопасной эксплуатации паровых и водогрейных котлов».
Комплектация
Водогрейные котлы КВр-2 доставляются в максимально собранном заводском виде и комплектуются всем необходимым для правильной установки прибора: запорной арматурой, контрольно-измерительными приборами и инструкцией по эксплуатации. Поставляется в комплекте с топкой (ОУР).












